Alpinzentrum_260313 | © © wurm Gesamtplanung

Meilenstein für das neue DAV Kletterzentrum: Entwurf erfolgreich finalisiert

Optimierte Planung, geringere Kosten und mehr Qualität bringen das Projekt in Ravensburg entscheidend voran

20.03.2026

Großer Schritt für das DAV Vereins- und Kletterzentrum Ravensburg: Die Entwurfsplanung ist abgeschlossen und vom Lenkungsausschuss einstimmig freigegeben. Durch gezielte Optimierungen konnten sowohl die Funktionalität als auch die Wirtschaftlichkeit des Projekts deutlich verbessert werden – bei gleichzeitig gestärktem Fokus auf Nachhaltigkeit und Gemeinschaft.

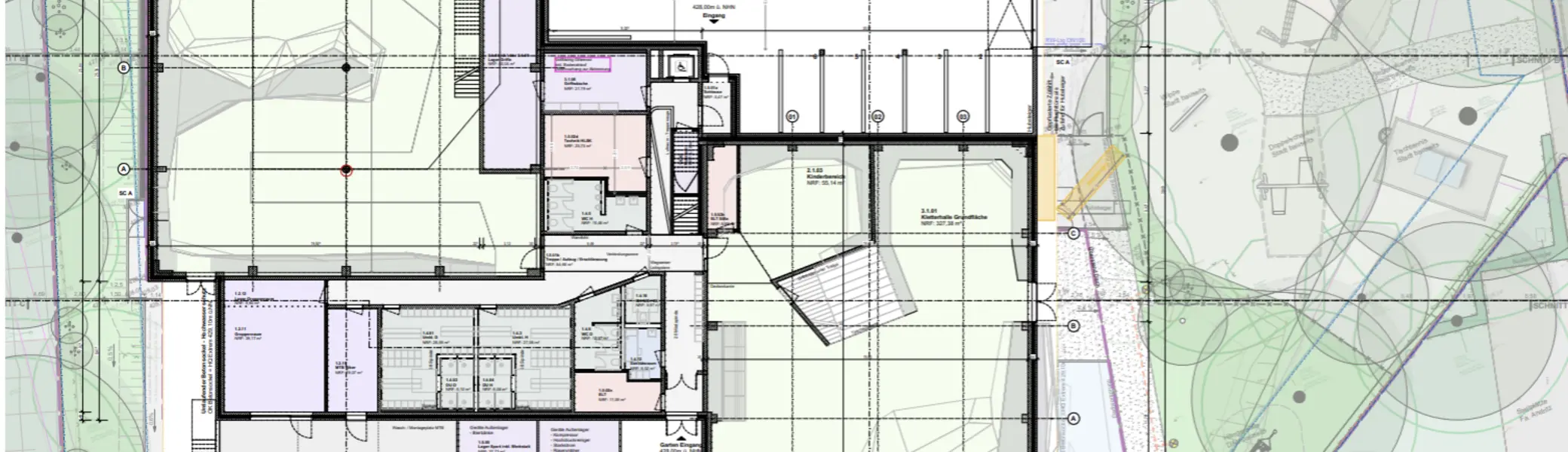
Gute Nachrichten für alle Kletterbegeisterten und Vereinsmitglieder in Ravensburg: Der Entwurf für das neue Vereins- und Kletterzentrum ist finalisiert. Mit dem Abschluss der Leistungsphase 3 für Erd- und Gartengeschoss ist ein entscheidender Schritt in Richtung Umsetzung gelungen.

Die überarbeiteten Pläne wurden von den Architekten wurm Gesaamtplanung vorgestellt und im Lenkungsausschuss einstimmig freigegeben – ein starkes Signal für die Qualität und Zukunftsfähigkeit des Projekts.

Intelligente Optimierungen

Im Fokus der Überarbeitung standen Anpassungen der Gebäudekubatur und Flächennutzung. Durch gezielte Reduzierungen, unter anderem an der Nord- und Ostseite, konnten Flächen effizienter organisiert werden.

Trotz dieser Anpassungen bleiben alle Anforderungen an das Raumprogramm erfüllt. Gleichzeitig wurden Büro-, Gruppen- und Schulungsbereiche funktional verbessert – teilweise sogar vergrößert.

Auch das Brandschutzkonzept wurde im Zuge der Überarbeitung deutlich optimiert und stärkt die Genehmigungsfähigkeit des Projekts.

Weniger Kosten, mehr Qualität

Die Optimierungen wirken sich auch finanziell positiv aus: Die Baukosten konnten von 9,46 Mio. Euro auf 9,12 Mio. Euro gesenkt werden. Das entspricht einer Einsparung von rund 335.000 Euro.

Grundlage dafür war die Analyse von über 40 Einsparpotenzialen, die häufig sogar mit funktionalen Verbesserungen kombiniert werden konnten – ohne Qualitätsverlust.

Nachhaltigkeit und Engagement

Das Projekt setzt auch ökologische Akzente: Eine Dachbegrünung sowie Photovoltaikanlagen auf den Hallendächern sind geplant und leisten einen Beitrag zur nachhaltigen Energieversorgung.

Ein besonderes Zeichen für den starken Gemeinschaftssinn im Verein: Die Eingangsrampe wird in Eigenleistung umgesetzt.

Mit diesem Meilenstein rückt die Vision eines modernen, nachhaltigen und funktionalen Vereins- und Kletterzentrums ein großes Stück näher.

Bild: Ausschnitt aus dem aktuellem Grundrissplan (EG) der Architekten wurm Gesamtplanung